︎
gässli
5
-
Eine Baudokumentarische Untersuchung
Allgemein
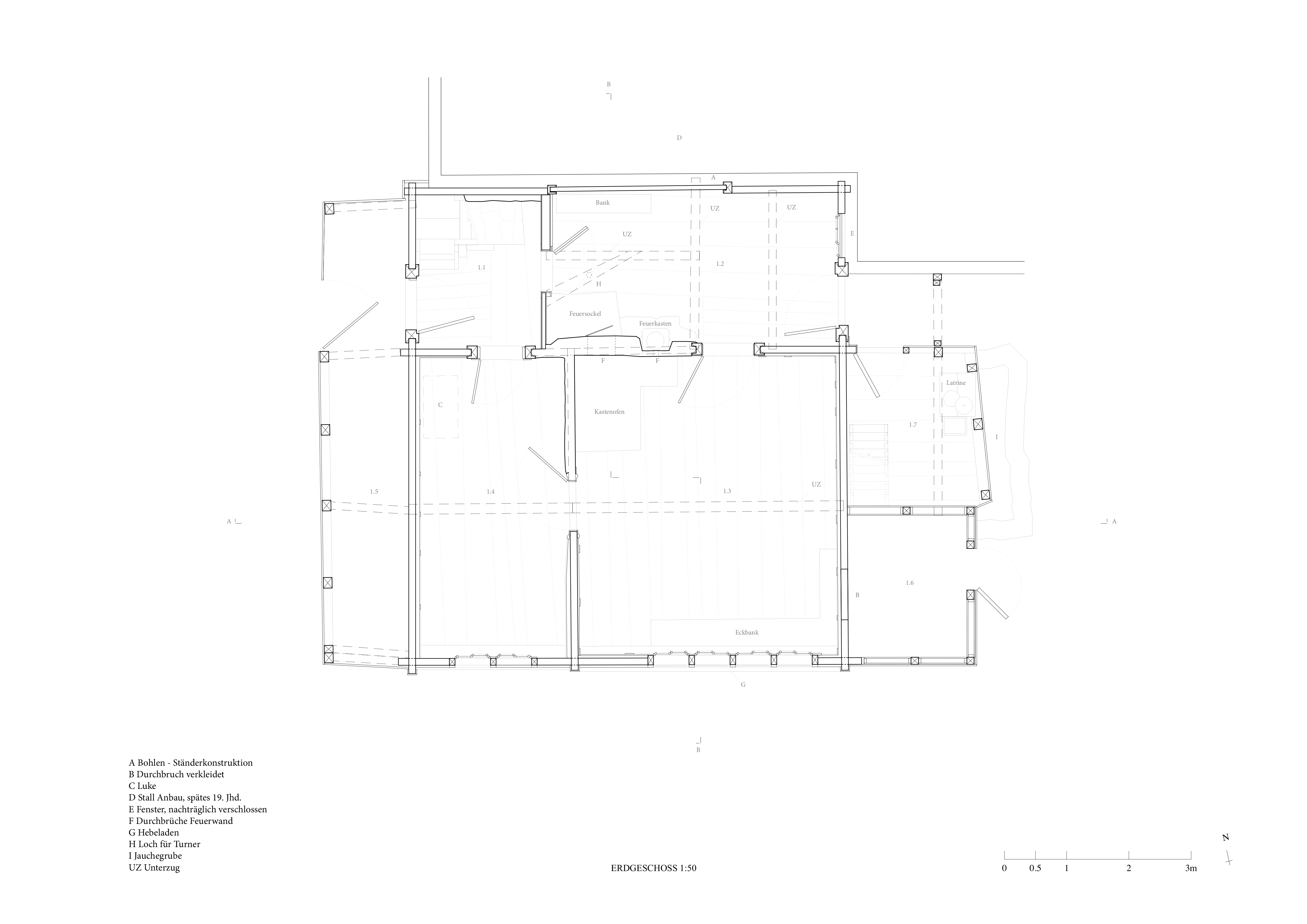
Baudokumentation
Pläne
Raumbuch
Info
Kontakt
©
2021
@allen.crippa
www.allencrippa.com
Über